Diensten
De onderstaande werkzaamheden kunnen voor u worden verricht! Voor specifieke vragen kunt u contact opnemen.

Vergunningstekeningen
Een set tekeningen die u nodig heeft om een omgevingsvergunning aan te vragen bij uw gemeente.

Ontwerptekeningen
Een gevisualiseerd boekwerk met verschillende impressies volgens uw bouwwens.

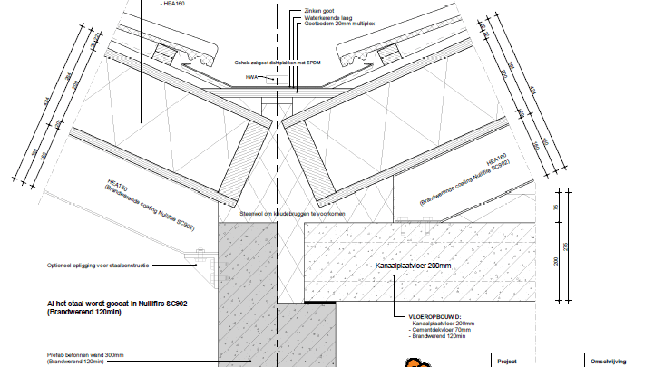
Bouwtechnische details
Een gedetailleerd uitgewerkt detail van de meest essentiële aansluitingen van uw project

Ontruimingsplattegrond
Een vluchtplan gebaseerd op de uitgangspunten van het bouwbesluit afkomstig uit 2012.
Wesley Tonnema
Dat is mijn naam! Ik volg momenteel de studie Bouwkunde op de hogeschool Saxion in Enschede. Bij Bouwkunde staat het maken van een gebouw centraal, waarbij alle fases rondom het bouwen aan bod komen. Op deze studie leer ik onder andere via 3D-programma’s gebouwen te ontwerpen. Daarnaast doe ik door deze studie ook kennis op over constructies, bouwmaterialen, bouwtechnieken, vormgeving en duurzaamheid.
Benieuwd naar enkele diensten die ik al heb verricht? Bekijk dan mijn portfolio pagina eens!

